A new wellness and recovery centre for Yellowknife will definitely be built on 51 Street, the NWT government said as it shared videos showcasing the facility’s design.
The centre is intended to replace the current sobering centre on 49 Street and a temporary day shelter operating from a series of portable units opposite the Explorer Hotel.
Some residents and businesses on or near 51 Street have raised concerns about the prospect of the centre being built there. In a video presentation on Tuesday, Department of Health and Social Services infrastructure planning director Perry Heath said other options had been explored but rejected.
Building a permanent facility near the temporary day shelter wouldn’t work on land that is “very complex geotechnically,” he said, pointing to the fate of a visitor centre that previously existed on the site but was demolished over structural issues.

The site of a former car dealership, also near the temporary day shelter, is “subject to an ongoing investigation under the Environmental Protection Act,” Heath said, which rules it out of consideration for the wellness and recovery centre.
Confirming that the GNWT plans to go ahead with a centre on 51 Street, he said the downtown location was what people and groups with an interest in the facility had asked for. There’s no permafrost concern at the site and an environmental assessment has been carried out with no issues, Heath said.
An application for a development permit has been submitted to the City of Yellowknife. The GNWT plans to put the work out to tender in July. The target date for the facility’s completion is now set at December 2025.
“We’re hopeful that a contractor may come along and say, ‘Hey, we can do it quicker than that.’ We’ll be ready to move forward if they are,” said Heath.
A ‘community hall’
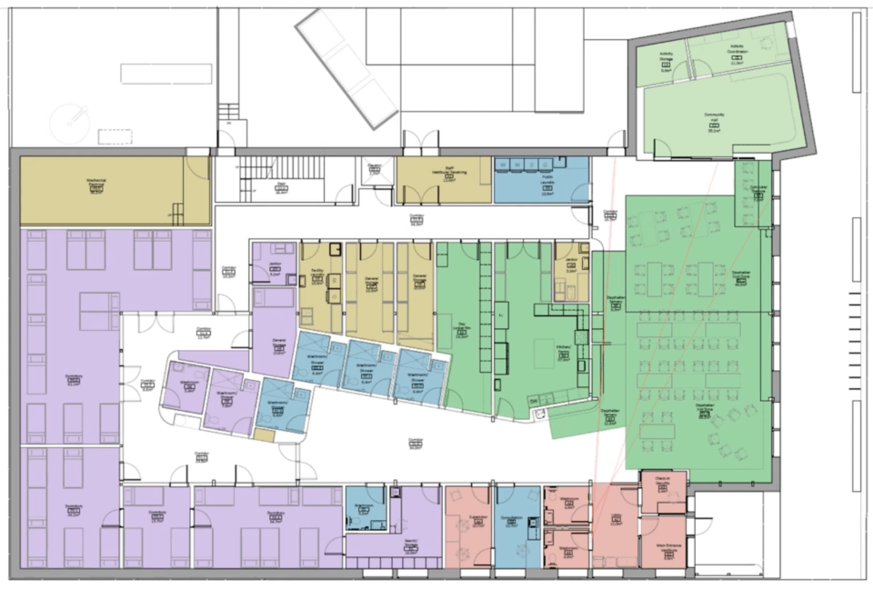
The new facility will have a capacity of 99 people, including a 30-bed recovery centre and 59 seats in the day shelter area, plus room for staff.
Heath and other NWT government representatives said the facility’s design and programming would attempt to incorporate a range of best practices and lessons learned from operating some of Yellowknife’s existing services.


Part of the facility will be a daytime safe, warm space for people aged 19 or older.
“It’ll have TVs, internet, three basic meals a day, bathrooms, showers, laundry facilities, and a secure storage room for clients’ belongings,” said Heath, describing feedback that people without homes needed somewhere to keep their possessions.
A community hall area is designed to act like a small NWT community hall, and is not something currently offered at either of the existing centres.
“The intent is a place for clients, staff, visitors, Elders, and community leaders to gather and partake in pretty-much any activity that would you find in a traditional community hall in a small, rural community,” said Heath. “We can have individual or group counselling, any measure of cultural activities, crafting, beading, all those elements, and we will also have the ability to do smudging in the space.”
Space will be available for individual counselling sessions.
Heath added that the building’s designers had attempted to avoid “long, narrow, straight hallways … to try to de-institutionalize the facility as much as possible.”
A centralized area in the middle of the building includes kitchen and laundry services. Much of the remainder of the building is given over to the recovery centre, which will function in a similar nature to the current overnight sobering centre, with the ability for people to rest at any time of day.
Referring to the building’s exterior, Heath said it had been designed to match the surrounding architecture. “It’s probably one of the better-looking facilities, in my opinion,” he added, “although I might be a little bit biased.”
Security and safety
Existing shelters in Yellowknife have long attracted concern from some neighbours about issues like violence and security.
Heath said feedback about this project had included concerns about noise and disruption downtown, the impact on nearby businesses and homes, and the effect on tourists and the tourism industry.
“We’ve think we’ve done a pretty decent job in making this facility improve the community, because it’s really quite a unique design. But we’ve heard that the development needs to fit the vision of the community, and the area, and the people that it serves,” he said.
Heath said measures to address concerns raised would include security cameras and regular staff patrols outside the building. “Safety will absolutely be a priority. The whole design of the facility is intended to do that,” he said.
“The staff patrols of the immediate area are critical for this being successful,” said Jenna Scarfe, the NWT health authority’s director of mental health and community wellness, adding that the authority would work on ways of openly communicating with neighbours about concerns.
“That’s definitely something in a lessons-learned category that we need to make sure we move forward with in the new planning,” she said.
Responding to recommendations that people using the facility have access to an outdoor space that didn’t involve having to be on the street, Heath said his department was committed to providing that.
Who will run the facility once it opens remains to be arranged.
“We would love to see a not-for-profit partner come forward and be able to operate the centre,” said Sara Chorostkowski, an assistant deputy minister at the Department of Health and Social Services.
“We currently don’t have anybody and so, certainly until such time as there is a partner who is willing and able to do this, the GNWT obviously will continue to be providing this essential service.”









